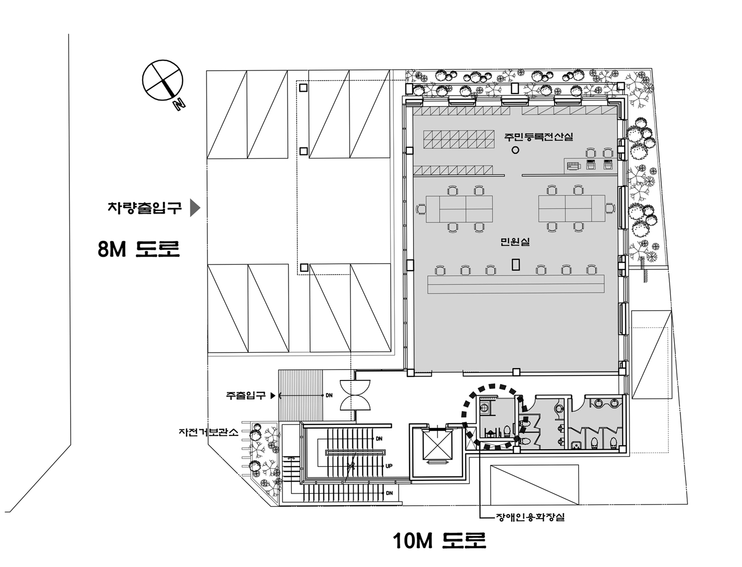
오토캐드 등촌 1동동사무소 도면
              
          2021. 1. 9. 07:24ㆍ무료공유파일/캐드파일공유
728x90
    
    
  사업자 정보 표시
  
        
                    
엘케이디자인(LKIDCT) | 임지훈 | 인천광역시 부평구 갈산동 402-2번지 | 사업자 등록번호 : 873-22-01210 | TEL : 010-2429-9980 | Mail : nicsman@naver.com | 통신판매신고번호 : 제2020-인천부평-2439호 | 사이버몰의 이용약관 바로가기
'무료공유파일 > 캐드파일공유' 카테고리의 다른 글
| 오토캐드 소방서 도면 (0) | 2021.01.09 | 
|---|---|
| 오토캐드 서울시기상청 도면 (0) | 2021.01.09 | 
| 오토캐드 동아일보신문사 도면 (0) | 2021.01.09 | 
| 오토캐드 대전둔산우체국청사 도면 (0) | 2021.01.09 | 
| 오토캐드 현대해상 도면 (0) | 2021.01.09 | 






